客房一览
- 尽享定山溪美景,
奢华客房的片刻时光
- 光滑的水和色彩丰富的树木交织,定山溪的自然美。
在以水为主题的16楼客房可尽享丰平川的河流,在以树木为主题的15楼客房可尽享四季不同的色彩。
请务必体验令人安心的2种奢华。
- 全部客房导入席梦思床
- 为了给您提供优质的睡眠,导入了在世界高级酒店中备受青睐的席梦思袋装线圈床垫。
- 16楼客房
- 让人感受到定山溪的清流,以美丽的水为主题的客房。
以艺术表现丰平川的水流及河边的石头。可以感受到溪谷的壮观和流水的丰富。
【观景浴室】 皇家套房
皇家套房
- 100m2的极尽奢华的陈设
- 位于酒店最顶层的16楼,是本馆最宽敞的套房。
附可独占定山溪自然风光的观景浴缸。宽敞的室内是让人感受到定山溪的清流的以水为主题的空间。窗边配置了落地椅,可以尽情欣赏景色。
※房间内的浴室非温泉。
平面布置图
查看设备・便利设施+
-
- 【设备】
- 席梦思床 / 4K 电视(65 英寸) / Hit's 简介(酒店基本信息系统) / 空气净化器 / 蓝牙扬声器 / 空调 / 冰箱 / 电热水壶 / 矿泉水(免费) / 吹风机 / 卷发器 / 保险箱 / 拖鞋(楼内使用,一次性) / 手电筒电灯 / 咖啡机 / 多功能充电器
-
- 【洗漱用品】
- 牙刷牙膏/化妆棉/棉签/橡皮筋/发刷/剃须刀/浴巾/护肤品四件套 (秀丽层) /洗发水 (IUGEN) /护发素 (IUGEN) /沐浴露 (IUGEN) /洗面水 (IUGEN) /香氛 (IUGEN) /浴巾/浴巾/浴袍/工作服
【观景浴室】至尊套房
尊贵套房
- 从最上层开始独占,定山溪的绝景
- 位于酒店最顶层,带景观浴室的套房。
房间设计以石头与红叶为主题。客厅空间和床空间分开,是可以奢侈地度过平静时间的空间。
从浴缸可欣赏到变化的定山溪景色。
※房间内的浴室非温泉。
平面布置图
查看设备・便利设施+
-
- 【设备】
- 席梦思床 / 4K 电视(55 英寸) / Hit's 简介(酒店基本信息系统) / 空气净化器 / 蓝牙扬声器 / 空调 / 冰箱 / 电热水壶 / 矿泉水(免费) / 吹风机 / 卷发器 / 保险箱 / 拖鞋(楼内用,一次性) / 手电筒电灯 / 咖啡机 / 多功能充电器
-
- 【洗漱用品】
- 牙刷和牙膏 / 化妆棉 / 棉签 / 发圈 / 梳子 / 剃须刀 / 浴巾 / 四件套护肤品(分层) / 洗发水 / 护发素 / 沐浴皂 / 面巾 / 浴巾 / 浴袍 / 作务衣
【观景浴室】豪華套房
豪华套房
- 融入自然,独一无二的奢华
- 位于酒店最顶层的16楼,限定1间的套房。
附可在客房内感受定山溪雄伟自然的观景浴缸。
四季不同的定山溪景色,让您放松休息。
※房间内的浴室非温泉。
平面布置图
查看设备・便利设施+
-
- 【设备】
- 席梦思床 / 4K 电视(55 英寸) / Hit's 简介(酒店基本信息系统) / 空气净化器 / 蓝牙扬声器 / 空调 / 冰箱 / 电热水壶 / 矿泉水(免费) / 吹风机 / 卷发器 / 保险箱 / 拖鞋(楼内用,一次性) / 手电筒电灯 / 咖啡机 / 多功能充电器
-
- 【洗漱用品】
- 牙刷和牙膏 / 化妆棉 / 棉签 / 发圈 / 梳子 / 剃须刀 / 浴巾 / 四件套护肤品(分层) / 洗发水 / 护发素 / 沐浴皂 / 面巾 / 浴巾 / 浴袍 / 作务衣
- 15楼客房
- 以被群山环绕的定山溪色彩斑斓的树木为主题的客房,被誉为“札幌之汤之杜”。
艺术表现丰富的绿色与红叶,让您感受溪谷季节变化带来的鲜艳色彩。
高级套房
高级套房
- 与丰富的绿色一起度过悠闲的时光
- 被群山环绕,以定山溪色彩丰富的树木为主题的套房。不妨碍窗外景色的考究面料。
能尽享如同剪下绘画般的四季景色。
※房间内的浴室非温泉。
平面布置图
查看设备・便利设施+
-
- 【设备】
- 席梦思床 / 4K 电视(55 英寸) / Hit's 简介(酒店基本信息系统) / 空气净化器 / 蓝牙扬声器 / 空调 / 冰箱 / 电热水壶 / 矿泉水(免费) / 吹风机 / 卷发器 / 保险箱 / 拖鞋(楼内用,一次性) / 手电筒电灯 / 咖啡机 / 多功能充电器
-
- 【洗漱用品】
- 牙刷和牙膏 / 化妆棉 / 棉签 / 发圈 / 梳子 / 剃须刀 / 浴巾 / 四件套护肤品(分层) / 洗发水 / 护发素 / 沐浴皂 / 面巾 / 浴巾 / 浴袍 / 作务衣
小型套房
普通套房
- 红叶点缀,融入自然的时间
- 以红叶为主题,色彩鲜艳的套房。
能尽享缓慢时光流逝的舒适空间。
明亮的阳光与树木描绘出季节的变迁。
※房间内的浴室非温泉。
平面布置图
查看设备・便利设施+
-
- 【设备】
- 席梦思床 / 4K 电视(55 英寸) / Hit's 简介(酒店基本信息系统) / 空气净化器 / 蓝牙扬声器 / 空调 / 冰箱 / 电热水壶 / 矿泉水(免费) / 吹风机 / 卷发器 / 保险箱 / 拖鞋(楼内用,一次性) / 手电筒电灯 / 咖啡机 / 多功能充电器
-
- 【洗漱用品】
- 牙刷和牙膏 / 化妆棉 / 棉签 / 发圈 / 梳子 / 剃须刀 / 浴巾 / 四件套护肤品(分层) / 洗发水 / 护发素 / 沐浴皂 / 面巾 / 浴巾 / 浴袍 / 作务衣
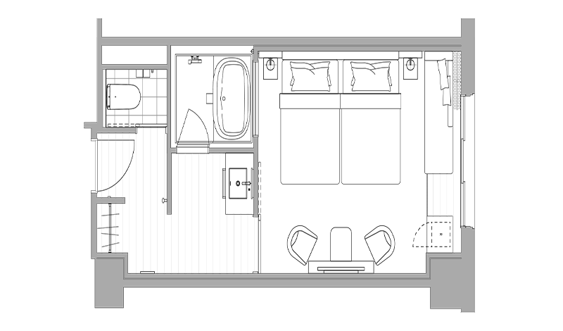
高级双床房
高级双床间
- 寂静,舒适的场所
- 以木为主题,舒适的西式双人房。
靠窗的沙发是能眺望到丰富的绿色和群山的特等席。可以尽享由天空和山构成的定山溪的雄伟的自然美。
※房间内的浴室非温泉。
平面布置图
查看设备・便利设施+
-
- 【设备】
- 席梦思床 / 4K 电视(55 英寸) / Hit's 简介(酒店基本信息系统) / 空气净化器 / 蓝牙扬声器 / 空调 / 冰箱 / 电热水壶 / 矿泉水(免费) / 吹风机 / 卷发器 / 保险箱 / 拖鞋(楼内用,一次性) / 手电筒电灯 / 咖啡机 / 多功能充电器
-
- 【洗漱用品】
- 牙刷和牙膏 / 化妆棉 / 棉签 / 发圈 / 梳子 / 剃须刀 / 浴巾 / 四件套护肤品(分层) / 洗发水 / 护发素 / 沐浴皂 / 面巾 / 浴巾 / 浴袍 / 作务衣